Papi Polo
Nos projets

Papi Polo

Résidence Papi Polo

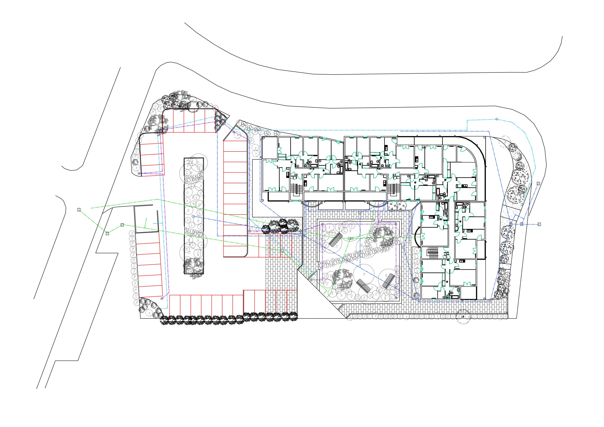
Pour ce projet, l’Atelier AOP a été sollicité par CDC Habitat afin de repenser les extérieurs de la résidence Papi Polo, située à La Garde.
Ces espaces, restés inchangés depuis les années 1990-2000, nécessitaient d’être réinventés, désimperméabilisés et végétalisés.

Nous avons d’abord réalisé un diagnostic détaillé des usages et des ambiances, puis rédigé des fiches actions afin de présenter nos intentions d’aménagement. Ce travail a permis d’obtenir une subvention dans le cadre de l’appel à projets « Nature ta ville », un dispositif régional qui encourage la renaturation des quartiers. Cette aide publique finance à la fois l’étude et une partie des travaux.

Très vite, il nous est apparu essentiel d’impliquer les habitants dans la démarche. Un atelier de concertation a donc été organisé sur site, afin de recueillir leurs attentes et de co-construire les premières pistes d’aménagement.

 

 

 

 

 

 

 

 

En cours de réalisation.

Étude et conception

Plan d'aménagement
Plan d'esquisse
Plan d'état des lieux
Concertation habitante

L'existant du site